

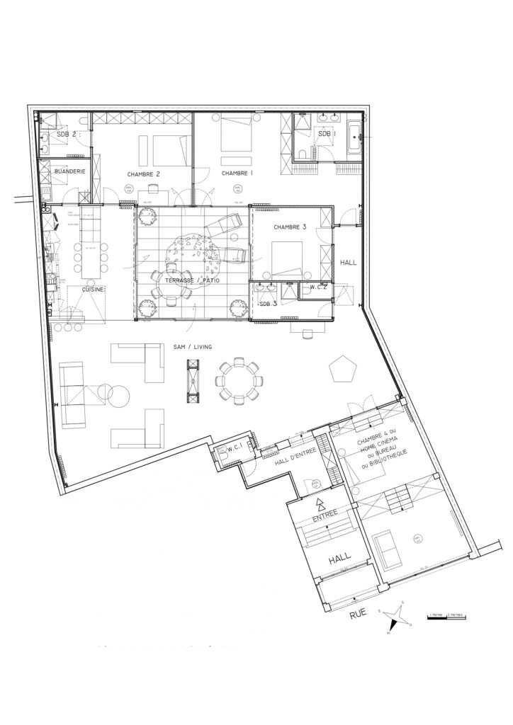
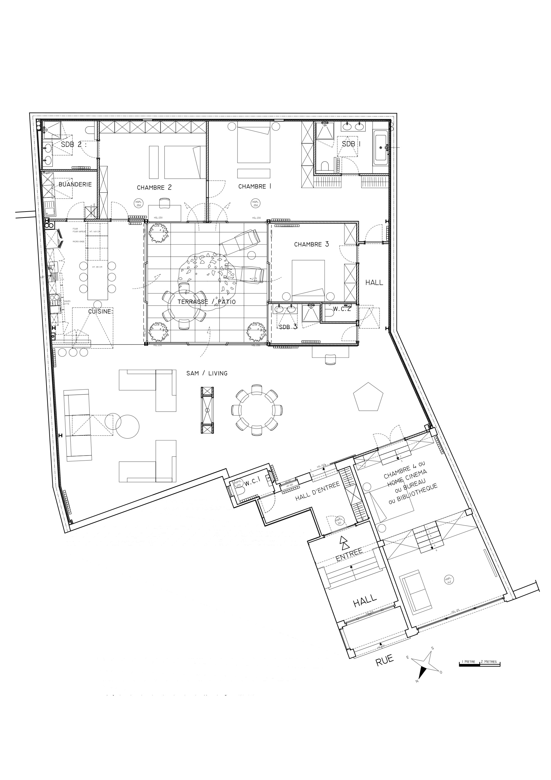
Splendide Loft en intérieur d’îlot avec grande terrasse, 4 ch., 3 sdb, lumineux, calme, Quartier européen, Mérode
Magnifique Loft total 320 m², 4 chambres lumineuses, situé dans un immeuble de rapport (accès rez de chaussée) + terrasse 34 m².
Comprenant un grand living - réception avec feu ouvert 115 m², cuisine full équipée (frigo américain, four micro-ondes, four, four vapeur, taque induction, teppanyaki, hotte, lave-vaisselle) avec coin repas et coin bar 29 m², 4 grandes chambres (36, 26, 40 et 16 m²), 1 salle de bain avec bain et douche, 2 salles de bain avec douche, 2 WC séparés.
Possibilité de home cinema, bibliothèque ou bureau.
Hall d’entrée avec vestiaires, buanderie.
Une terrasse type patio central.
Cave individuelle 5 m².
Plancher au sol.
Chauffage gaz central individuel.
Panneaux solaires pour l’électricité.
Adoucisseur d’eau.
Alarme.
Partiellement meublé : compris cuisine full équipée et toutes les armoires dressing et vestiaire
Emplacement parking intérieur : supplément 150 €/mois.
Quartier calme proche du Cinquantenaire, de Mérode et de la CEE.
Charges communes d’immeuble (nettoyage et électricité commune) : 30 euros / mois.
Consommations individuelles gaz, eau, électricité non comprises.
Visite virtuelle:
http://www.crearte.be/virtuelles/gare_3/default_1.html